Every new retirement apartment at The Shires in Moseley has been meticulously designed to provide a luxurious, spacious and comfortable place that you’ll be proud to call home.

With beautiful and contemporary design, high specification and exceptional build quality, they offer the perfect place to relax and enjoy the best years of your life.

Explore luxury living at The Shires

Take a virtual tour and imagine life in one of our beautiful tailor-made luxury apartments.

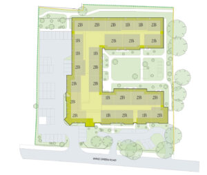
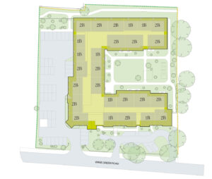
Site plan

The Shires offers 72 luxury 1 and 2 bedroom apartments over four floors, with communal spaces residing on the lower levels.

Bright and stylish living spaces

Modern, well-appointed kitchen areas

Cosy and relaxing bedrooms

Designed with accessibility in mind

Walk-in-shower and luxurious bathroom fittings

Apartment types

Residents are offered a choice of three superb apartment styles, each meticulously designed to meet your every need.

The Salisbury

Kitchen 4.10m × 2.57m 13′ 5″ × 8′ 5″
Living Room 4.52m × 2.87m 14′ 10″ × 9′ 5″
Bedroom 4.02m × 2.76m 13′ 2″ × 9′ 1″
Bathroom 2.95m × 2.76m 9′ 8″ × 9′ 1″

The Russel

Kitchen 3.79m × 3.35m 12′ 5″ × 11′ 0″
Living Room 4.18m × 3.79m 13′ 9″ × 12′ 5″
Bedroom 4.48m × 2.92m 14′ 9″ × 9′ 7″
Bedroom 2 3.17m × 2.27m 10′ 5″ × 7′ 5″
Bathroom 2.95m × 2.92m 9′ 8″ × 9′ 7″

The Chantry

Kitchen 4.72m × 3.35m 15′ 6″ × 11′ 0″
Living Room 4.72m ×4.18m 15′ 6″ × 13′ 9″
Bedroom 1 4.48m × 3.48m 14′ 9″ × 11′ 5″
Bedroom 2 3.17m × 2.56m 10′ 5″ × 8′ 5″
Bathroom 3.48m × 2.95m 11′ 5″ × 9′ 8″

These apartment types are indicative of the available plots and are for illustrative purposes only. There are variances in size and layout across the various apartment types, please speak to your sales executive for plot specific information.